
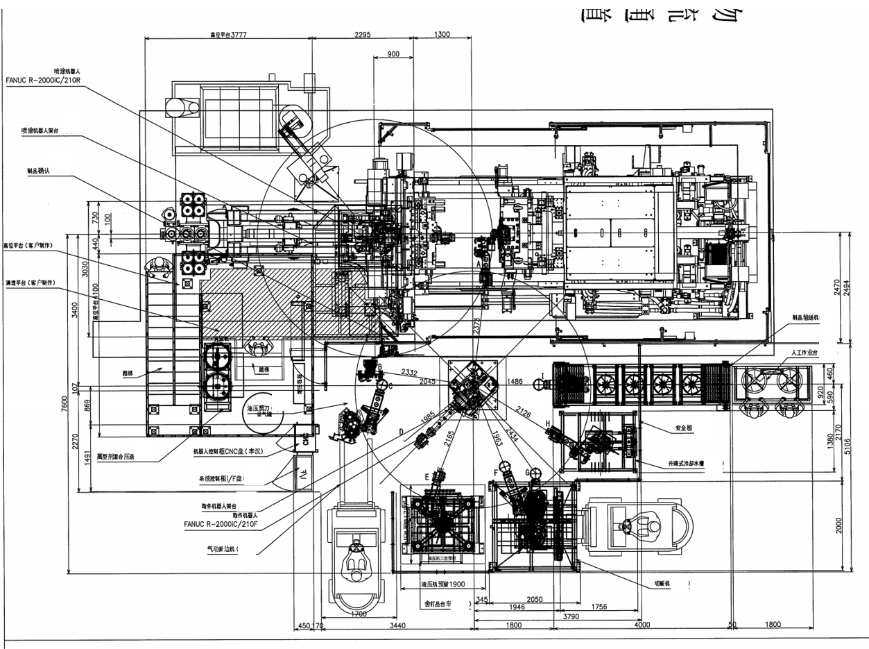
1. The system adopts a cutting machine, using a round play disk to cut off, cutting off the remaining root accuracy can be. 1mm.
2. The spraying system uses a special spraying head, which can greatly improve the beat time.
3. Spray head design quick change mechanism, can manually replace the spray head within 10 minutes.